


24小時檢測量1000
- 6000管
支持20:1.10:1混采檢測
銳途醫療移動核酸快檢車采用依維柯底盤改裝而成,可以實現現場采樣、現場檢測、現 場出結果,車輛抵達現場后2分鐘即可完成部署,可以做到隨到隨采,隨采隨檢。
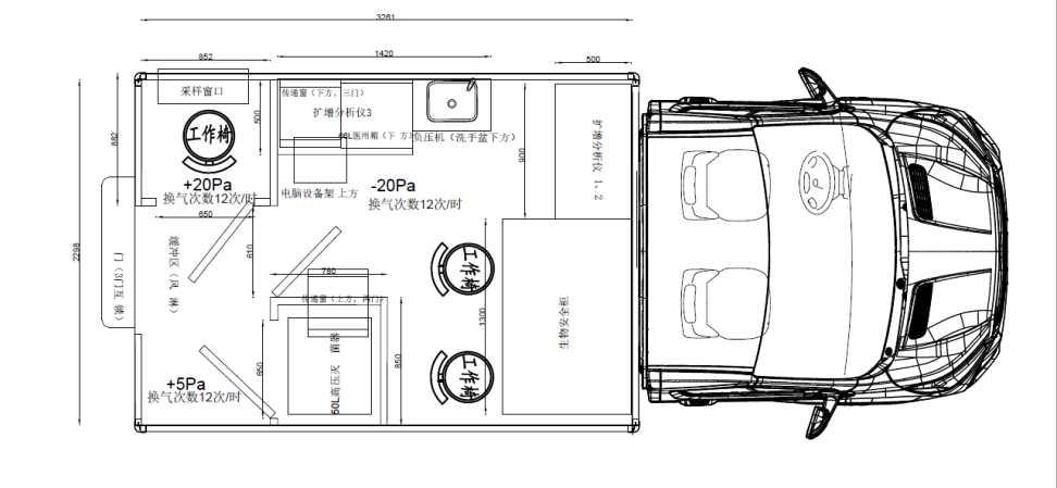
車輛分為核酸采樣區、檢測擴增分析區兩個區域,可以定制洗消區。每臺車24小時可以實現 1000 - 6000管的單檢,支持20:1、10:1混采檢測,46分鐘即可出結果,實驗過程中僅需1人即可 完成操作,極其適合社區、**、車站、碼頭、機場等社會公共場所駐點檢測。
產品特點
◎高通■: 1000-6000管(24 小時)
◎全自動檢測;檢測時間46min,檢測速度快,實現了隨到隨檢
◎車載管理系統、輕量化全自動LIS系統與**/實驗檢測室無縫對接人力需求少,每車配置3-7人 ◎多功能:新冠病毒、呼吸道宀,原體、泌尿生殖系統、腸道病毒、血液傳播疾病、食源性疾病................. .....
◎適用于社區、**、車站W多種場景,C1照即可駕駛,無需特殊駕照,每車3人即可操作
◎滿足“P2+”實驗室要求
車內布局

細節展示

設備清單
6米快檢核酸檢測車24小時6000管設備清單
|
序號 |
設備 |
品牌 |
型號 |
單位 |
數量 |
|
1 |
6米藍牌核酸檢測車 |
程力 |
咪 |
臺 |
1 |
|
2 |
生物安全框-惡雙人 |
博科 |
11228BBC86 |
臺 |
1 |
|
3 |
核酸快速檢測全舍動PCR分-系 統 |
天隆 |
48E |
臺 |
2 |
|
4 |
圖形可旋轉匸降座椅 |
程力 |
定司 |
個 |
4 |
|
5 |
全消毒革通道=調移液器 |
大龍 |
10-50 ML |
1 |
|
|
6 |
全消毒w動日通道移液器 |
大龍 |
10-100 ML |
把 |
2 |
|
7 |
移液器支架 |
大龍 |
線性色 |
套 |
1 |
|
8 |
混勻儀 |
大龍 |
MX-M |
臺 |
1 |
|
9 |
離心機 |
大龍 |
D1008 |
臺 |
1 |
|
10 |
冰箱 |
漠柯想 |
YCD-265 |
臺 |
1 |
|
13 |
電纜線(軟罰5芯國標) |
程力 |
.定制 |
米 |
15 |
|
14 |
超低溫跡護-低溫地區適用 |
程力 |
項 |
1 |
|
|
15 |
UPS (支持三W、實驗設備W轉 3。分鐘以二) |
佃童 |
.定制 |
套 |
1 |
|
16 |
UPS能源管理系統 |
仙童 |
宅制 |
套 |
1 |
|
17 |
UPS鋰電池簇匸度電) |
仙童 |
定乏 |
千瓦時 |
1 |
|
18 |
M輸服務(輸■入公里數) |
車隊 |
車隊 |
公圭 |
1000 |
|
19 |
培訓,備案、驗收服務 |
程力 |
?程力 |
項 |
1 |
|
20 |
技宗人員差旅 |
趕力 |
程力 |
項 |
1 |
| ·可按用戶要求為根據用戶的實際需求,為每位用戶打造品質、個性化的專用車,歡迎新老客戶來電來人考察訂購和自帶底盤改裝! ·創優質服務企業; 造用戶滿意產品; 樹品牌!公司堅持以“質量求生存、信譽求發展、科技創新路、服務創品牌”的經營理念,以“誠信、務實、創新、進取”為企業宗旨,不斷提升自身產品質量,開發適應市場需求物美價廉的多功能專用汽車! |

我們將謁誠為您提供好、快、優質的服務! ·**步:購車洽談: 通過電話聯系或實地考察洽談車輛型號、價格和相關要求。 ·**步:簽訂合同: 雙方簽訂車輛購銷合同并預付合同定金(傳真簽訂合同、實地簽訂合同均可)。 ·第三步:安排生產: 我公司根據合同要求,安排車間生產。 ·第四步:交付車輛: 車輛交付驗收,支付車輛余款,完成相關手續。 交付方式:客戶可自提車輛,也可協商由我公司安排送車并協定相關費用.更多詳細訂車流程請來電咨詢! |

售后服務承諾書
本公司是一家專用汽車企業。多年來經過公司全體員工的不懈努力,已形成一條完整的設計、銷售、質量檢測和售后服務的產業鏈。售后服務是我公司售前、售中和售后環節中的重要支柱。特別是近幾年來隨著公司能力的不斷提升和出口貿易的展開,售后服務體系得到了完善。
服務體系
一、服務體系是質量管理體系的重要環節。
二、服務保障:本公司服務是嚴格履行公司程序文件和質量手冊,結合市場和用戶的要求,給予保障。
三、服務宗旨:專業創造價值,誠信鑄就未來!
四、服務機構:在銷售公司下的售后服務部門,負責公司售后服務工作和管理各駐外機構的服務工作。
服務原則
在用戶嚴格遵循使用說明書,正常操作的情況下,自購車之日起(以車輛出廠登記卡為準)一年內,行駛里程不超過 25000公里之內,因設計、裝配原因引起的產品機件損壞,經有關汽車服務站和監督部門鑒定后,在三個工作日內向我公司售后服務部門提交書面資料,售后服務部門確認后實行三包服務。
具體服務如下:
1、三包服務期內的產品質量以包修為主,修理費全免(不包括易損件和電器部分)。
2、終身保修。超過包修期內的產品,需更換配件的只收取相關成本費。
3、免費培訓操作員:
⑴ 由我廠安排工程師現場指導,學習理論及實際操作;
⑵ 掌握專用車的基本理論,性能以及功能;
⑶ 按程序能熟練的操作;
⑷ 能進行正常的日常維護,排除一般技術故障。
